Him Lam Vạn Phúc

Him Lam Vạn Phúc là dự án nhà phố thương mại shophouse của chủ đầu tư Him Lam nằm tại mặt đường Tố Hữu, Vạn Phúc, Hà Đông. Dự án Him Lam Hà Đông được xây dựng trên diện tích 70.928,7m2 với quy mô 222 căn shophouse thiết kế 2 mặt tiền phù hợp vừa ở vừa kinh doanh. Liền Kề Shophouse Him Lam Vạn Phúc sẽ là sự lựa chọn đẳng cấp dành cho các khách hàng muốn tìm kiếm một căn hộ xứng tầm.

NHÀ PHỐ SHOPHOUSE HIM LAM VẠN PHÚC MẶT ĐƯỜNG TỐ HỮU HÀ ĐÔNG

HOTLINE: O9.633.633.9O

dự án him lam vạn phúc
Phối cảnh dự án Him Lam Vạn Phúc

I, Tổng Quan Dự Án Shophouse Him Lam Vạn Phúc

Tên dự án: Him Lam Vạn Phúc

Chủ đầu tư: Công Ty Cổ Phần Him Lam

Vị trí dự án: Trung tâm phường Vạn Phúc, quận Hà Đông, Hà Nội. (Ngã 4 giao cắt đường Tố Hữu)

Tổng tiện tích đất dự án: 70.928,7m2

Diện tích xây dựng: 24.328,5m2

Quy hoạch đường giao thông: 10.717,5m2

Thiết kế trường tiểu học + Trung học cơ sở: 16.035m2

Bãi đỗ xe: 600m2.

Dân số: khoảng 932 người.

Mật độ xây dựng: 34,3%

Quy mô dự án: 222 Căn Shophouse

Diện tích mỗi căn từ: 84,45 m2 -126 m2.

Thiết kế lô shophouse: 6 tầng 100% Các căn Shophouse đều có 2 mặt tiền.

Mật độ xây dựng từng căn Shophouse: 80%

shophouse him lam vạn phúc

II, Vị Trí Dự Án ShopHouse Him Lam Hà Đông

Shophouse Him Lam Vạn Phúc tọa lạc tại phường Vạn Phúc, Quận Hà Đông, TP Hà Nội. Nằm dọc trục đường Tố Hữu & Lê Văn Lương kéo dài, tiếp giáp các khu đô thị hiện hữu, đặc biệt nằm gần tuyến tàu điện trên cao thuận tiện cho việc giao thương hàng hóa và di chuyển vào trung tâm thành phố cũng như liên kết đi các tỉnh lân cận.

vị trí dự án him lam vạn phúc

Vị trí kết nối dự án Him Lam Vạn Phúc

  • Phía Tây giáp đất nông nghiệp và trường quốc tế nhật bản

  • Phía Đông giáp ngã tư vạn Phúc và Shophouse 24h

  • Phía Nam giáp dự án TTTM làng nghề truyền thống

  • Phía Bắc giáp dự án khu dân cư Simco Sông Đà.

Dự án Him Lam Vạn Phúc có kết nối giao thông thuận tiện, đi về trung tâm thành phố Hà nội theo hướng đường Nguyễn Trãi, Lê Văn Lương, Tuyến đường sắt Hà Đông – Cát Linh, Tuyến Bus nhanh BRT, đi về các tỉnh miền bắc như Hưng Yên, Bắc Ninh, Hải Dương, Hải Phòng Quảng Ninh theo đường vành đai 3, đi Sơn Tây theo Hướng đường Lê Trọng Tấn kéo dài, Thuận Tiện đi về Hòa Bình theo Đường Quốc Lộ 6.

Từ vị trí Shophouse Him Lam cư dân có thể dễ dang di chuyển một cách thuận tiện tới:

  • Khu Đô Thị Văn Khê cách 1,7km

  • Học Viện Chính Trị cách 1,9km

  • UBNN Quận Hà Đông cách 1,7km

  • Sân Vận Động Hà Đông cách 1,9km

  • Bến Xe Hà Đông cách 2,2km

  • Trung Tâm Y Tế Hà Đông cách 1,7km

  • Trường Mầm Non Vạn Phúc cách 700m

  • Trường Tiểu Học vạn phúc cách 240m

  • Vườn Hoa Hà Đông cách 1,5km

liên kết vùng him lam vạn phúc

III, Tiện Ích Dự Án Shophouse Him Lam Vạn Phúc

Him Lam Vạn Phúc được định hướng đầu tư trở thành một khu đô thị sôi động hiện đại, chủ đầu tư Him Lam đã đầu tư hệ thống dịch vụ – tiện ích cao cấp và đồng bộ, đảm bảo mọi nhu cầu cuộc sống của cư dân và gia đình được đáp ứng tối đa.

tiện ích dự án him lam vạn phúc

Được thiết kế mang dáng dấp của “Đại lộ Montaigne của Hà Đông” – khu nhà phố thương mại đẳng cấp và sầm uất bậc nhất khu vực Hà Đông, Him Lam đã hiện thực hóa ước mơ về một khu đô thị sôi động hiện đại, với đầy đủ tiện ích nội khu như:

  • Trường học

  • Trung tâm thể thao

  • Khu vui chơi giải trí

  • Công viên

  • Siêu thị, nhà hàng, quán café…

Ngoài ra, cảnh quan cũng là một trong những yếu tố góp phần tạo nên điểm nhấn cho dự án Him Lam. Với mong muốn mang đến không gian thiên nhiên trong lành lý tưởng để gắn kết, thư giãn cùng gia đình, bạn bè, chủ đầu tư đã kiến tạo không gian sống xanh với ý tưởng về một thiên đường hoa Hồng Pháp quyến rũ. Him Lam Vạn Phúc chỉ một bước là bạn có thể ra đến “phố”, nơi có đầy đủ các mặt hàng để bạn thỏa sức thực hiện đam mê mua sắm của mình.

tiện ích dự án him lam vạn phúc

IV, Mặt Bằng Dự Án ShopHouse Him Lam Vạn Phúc

Mang trong mình kiến trúc cổ điển Pháp, shophouse Him Lam Vạn Phúc khẳng định đẳng cấp và gu tinh tế của chủ nhân khi sở hữu không gian sống tuyệt vời này. mỗi căn shophouse tại đây được sáng tạo khi kết hợp nét kiến trúc nguyên bản và sáng tạo theo hướng hiện đại, trang nhã do đó nó sẽ mang trong mình những kiến trúc kinh điển vượt thời gian.

shophouse him lam vạn phúc

Sự khác biệt của dự án Him Lam Vạn Phúc là sự kết hợp hoàn hảo giữa vẻ đẹp của kiến trúc với vị trí vàng về giao thương – kim cương về giá trị sử dụng. tất cả các căn đều được thiết kế thông thoáng 2 mặt tiền, mặt đường rộng giúp cho công việc kinh doanh đạt độ sinh lời tối đa.

Dự án Him Lam Vạn Phúc có 222 Căn Liền kề shophouse, có 03 khu A,B,C. mỗi khu có nhiều Block và mỗi Block có từ 7 đến 9 căn hộ.

mặt bằng tổng thể him lam vạn phúc

V, Mặt Bằng Từng Lô Dự Án Shophouse Him Lam Vạn Phúc

Dự án Shophouse Vạn Phúc Hà Đông có vị trí đắc địa nằm ngay trên đường Tố Hữu – Vạn Phúc – Hà Đông (Trục đường xương sống của quận Hà Đông) với 222 căn shophouse Hà Đông tại dự án tương đương số dân cư mới hơn 1500 người, chưa kể số lượng khách đến tham quan, vui chơi và mua sắm, không khó đoán Liền kề Him Lam chính là cơ hội đầu tư hiệu quả cho các hộ gia đình vừa muốn sống tại khu trung tâm Vạn Phúc Hà Đông, vừa muốn kinh doanh tại khu làng nghề Vạn Phúc.

Thông tin căn Liền kề Him Lam Vạn Phúc:

Các loại diện tích nhà bán dự án Him Lam Vạn Phúc: 85 – 91 – 98 – 108 – 115 – 120 – 126m2.

Căn 85m2 – 7m x 12m: Căn 2 mặt tiền.

Căn 91m2 – 7.5m x 12m: Căn 2 mặt tiền.

Căn 98m2 – 8.5m x 12m: Căn 2 mặt tiền.

Căn 108m2 – 9m x 12m: Căn 2 mặt tiền.

Căn 115m2 – 9.5m x 12m: Căn 2 mặt tiền.

Căn 120m2 – 10m x 12m: Căn góc 3 mặt tiền, đầu ngã tư.

Căn 126m2 – 10.5m x 12m: Căn góc 3 mặt tiền, đầu ngã tư.

Thiết kế: 6 tầng. Các căn Shophouse Vạn Phúc Hà Đông đều có 2 mặt tiền.

Mật độ xây dựng từng căn liền kề Shophouse: 80%.

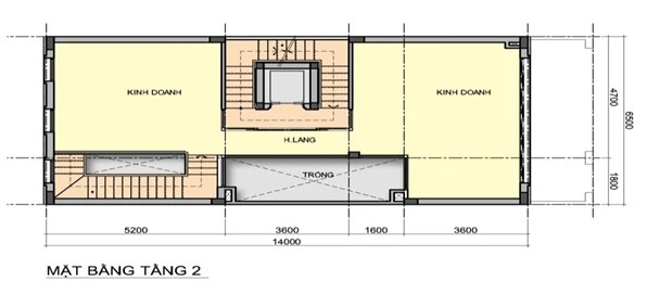
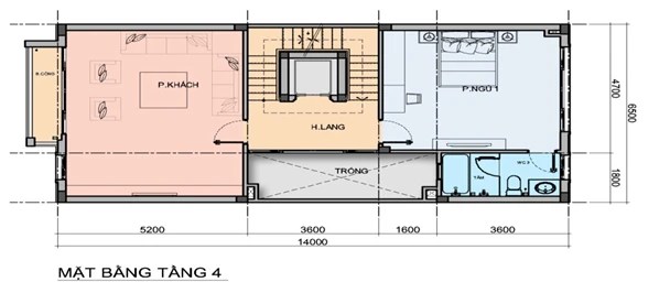
Công năng sử dụng của mỗi tầng:

Tầng 1: Kinh doanh và để xe.

Tầng 2: Kinh doanh và sinh hoạt.

Tầng 3: Phòng ăn và bếp.

Tầng 4: Phòng khách và phòng ngủ.

Tầng 5: Phòng ngủ 2 và phòng ngủ 3.

Tầng 6: Phòng thờ và sân phơi.

Chiều cao xây thô giữa các tầng Shophouse Hà Đông:

Tầng 1: Cao 3,9m.

Tầng 2 đến tầng 6: Cao 3,6m.

Thiết kế thông thoáng, tối đa hóa công năng sử dụng.

Diện tích xây dựng: 470.72 m2

Giá bán: Từ 70tr/m2. (Vào tên hợp đồng mua bán).

Diên tích mỗi căn từ 84,45 – 126,68 m2, Xây dựng 6 tầng lầu, tất cả các căn hộ đều có 2 mặt tiền và nhiều ô thoáng (tạo không gian thoáng đoãng và thoải mái).

thiết kế shophouse him lam vạn phúc tầng 1

thiết kế shophouse him lam vạn phúc tầng 2

thiết kế shophouse him lam vạn phúc tầng 3

thiết kế shophouse him lam vạn phúc tầng 4

thiết kế shophouse him lam vạn phúc tầng 5

thiết kế shophouse him lam vạn phúc tầng 6

shophouse dự án him lam vạn phúc

shophouse dự án him lam vạn phúc

VI, Chính Sách Bán Hàng Và Tiến Độ Thanh Toán Dự Án Him Lam

Chính sách bán hàng của dự án hiện đang cập nhật, chúng tôi sẽ thông báo đến quý khách hàng sớm nhất.

Thanh toán linh hoạt theo tiến độ xây dựng của công trình:

Đợt 1: Đóng 30% tổng giá trị sau khi ký hợp đồng mua bán.

Đợt 2: Đóng 20% tổng giá trị sau 2 tháng ký hợp đồng.

Đợt 3: Đóng 20% tổng giá trị sau 2 tháng kể từ đợt 2.

Đợt 4: Đóng 25% khi bàn giao nhà.

Đợt 5: Đóng 5% khi bàn giao sổ đỏ.

Liền kề shophouse Him Lam Vạn Phúc hiện đã thi công xong phần hạ tầng kỹ thuật như đường, vỉa hè, đường điện + nước, hệ thống ngầm, cây xanh… Hạng mục đầu tiên đã đi vào hoạt động như trường quốc tế Nhật Bản. Dự án Him Lam được xem là dự án đô thị kiểu mới tại quận Hà Đông, có ý nghĩa đặc biệt quan trọng, đánh thức tiềm năng, khơi nguồn phát triển, làm thay đổi diện mạo của vùng đất phía Tây thủ đô Hà Nội.

THĂM QUAN DỰ ÁN, XEM NHÀ HIM LAM VẠN PHÚC

Khách hàng nên liên hệ trực tiếp với Chúng tôi để được tư vấn đầy đủ, chính xác nhất
và nhận bảng giá gốc sớm nhất

Liên Hệ Đại Diện Chủ Đầu Tư
Hotline: O9.633.633.9O (phòng kinh doanh)

Chân thành cảm ơn quý khách hàng đã quan tâm!

error: Content is protected !!