Epic Tower 19 Duy Tân là dự án tổ hợp văn phòng và căn hộ 5 sao mang phong cách Art Boutique Home của chủ đầu tư Công ty cổ phần EcoLand tọa lạc tại số 19 Duy Tân, Quận Cầu Giấy Hà Nội. Dự án Epic Tower được xây dựng trên lô đất có tổng diện tích 5527 m2, bao gồm 2 block A và B, có chiều cao 30 tầng nổi cùng 4 tầng hầm mỗi tháp. Tháp A là tòa căn hộ dịch vụ trong khi Tháp B là tòa dành riêng phát triển toà nhà văn phòng cho thuê. Chung cư Epic Tower thiết kế cao 30 tầng nổi với 308 căn hộ cao cấp có diện tích từ 68.5 m² – 121 m².
CÓ THỂ BẠN QUAN TÂM:
EPIC TOWER 19 DUY TÂN – NHẬN BOOKING CĂN HỘ CAO CẤP, VĂN PHÒNG HẠNG A CHỈ TỪ 1XXTR/M2 – VAY O%, CK TỚI 5%, QUÀ TẶNG ƯU ĐÃI TỪ CĐT
HOTLINE TƯ VẤN 24/24: O9.633.633.9O – O94.6789.191

Epic Tower Cầu Giấy được lấy cảm hứng phong cách Art Decor & Indochine hoàng kim đầy chất sang ngay từ kiến trúc bên ngoài, tòa nhà Epic Tower hiện lên như bản tuyên ngôn tuyệt mỹ về một kiến trúc trường tồn không tì vết thời gian. Sở hữu vị trí đắc địa cùng hệ thống dịch vụ tiện ích đẳng cấp vượt trội, dự án Epic Tower nhanh chóng trở thành dự án để ở và đầu tư hấp dẫn nhất khu vực quận Cầu Giấy.
* 6 – YẾU TỐ NỔI BẬT TẠI DỰ ÁN EPIC TOWER DUY TÂN
-
Vị trí vàng kết nối trung tâm
Tọa lạc nơi trái tim KĐT mới Cầu Giấy với hàng loạt điểm tiếp giáp với các tuyến đường huyết mạch và khu đô thị hạt nhân, Epic Tower còn dễ dàng kết nối đến trái tim thủ đô nhờ lộ trình đơn giản và thuận tiện.
-
Cộng đồng doanh nhân ưu tú
Nơi hội tụ của những chủ nhân thượng lưu, những con người cùng đẳng cấp, cùng phông văn hoá sẽ hình thành nên cộng đồng đặc biệt, cùng nhau phát triển.
-
Tiện ích nội khu ưu việt
Sở hữu hệ thống tiện ích all-in-one như công viên cây xanh, hồ bơi vô cực có nước nóng, khu vực BBQ trên cao, Business Lounge, phòng gym và yoga theo tiêu chuẩn quốc tế, nhà hàng 5 sao, an ninh 4 lớp…
-
Tiện nghi bên trong đẳng cấp
Nằm ở vị trí đắc địa và có lợi thế quỹ đất rộng lớn, Epic Tower sở hữu nhiều tiện ích cao cấp đảm bảo cư dân khi về sinh sống tại đây sẽ được sử dụng và tận hưởng hạ tầng đồng bộ, tiện nghi ngay ngưỡng cửa.
-
Kết nối tiện ích khu vực hoàn hảo
Tọa lạc tại vị trí vàng trung tâm Phố Duy Tân, dự án dễ dàng kết nối đến ĐH Quốc Gia Hà Nội, ĐH thương mại, bệnh viện 198, bệnh viện huyết học, trung tâm hội nghị Quốc Gia, bến xe Mỹ Đình, TTTM The Garden, công viên Cầu Giấy, công viên Yên Hòa…
-
Kiến trúc Art – Indochine
Epic Tower Cầu Giấy được lấy cảm hứng phong cách Art Decor & Indochine hoàng kim đầy chất sang ngay từ kiến trúc bên ngoài, tòa nhà Epic Tower hiện lên như bản tuyên ngôn tuyệt mỹ về một kiến trúc trường tồn không tì vết thời gian. Một “đế chế” riêng mang cảm hứng phong cách Đông Dương Quý phái.


I, TỔNG QUAN DỰ ÁN EPIC TOWER 19 DUY TÂN
-
Tên dự án: Epic Tower
-
Địa chỉ: Số 19 Duy Tân, Phường Dịch Vọng Hậu, Quận Cầu Giấy, Hà Nội.
-
Chủ đầu tư: Công ty cổ phần EcoLand
-
Tổng diện tích đất: 5527 m2
-
Diện tích xây dựng: 2200 m2
-
Mật độ xây dựng: 40%
-
Quy mô: 2 tòa tháp gồm Block Tháp A căn hộ, Block Tháp B văn phòng. Tổng cộng 30 tầng nổi và 4 tầng hầm, trong đó:
-
Khu vực lánh nạn tầng 20
-
Tháp A: Cung cấp 308 căn hộ với diện tích mỗi căn hộ khoảng 68 m2 – 120 m2
-
Hầm B4 – B3 – B2: Hầm đỗ xe
-
Hầm B1: Tổ hợp thương mại dịch vụ ăn uống
-
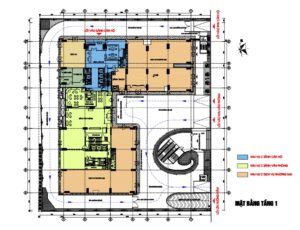
Tầng 1: Sảnh căn hộ, phòng quản lý kỹ thuật, phòng chờ, khu vực vệ sinh công cộng.
-
Tầng 2: Khu vực sinh hoạt cộng đồng. Nhà hàng Âu – Á, phòng hội thảo, vệ sinh công cộng.
-
Tầng 3 – 30: Khu căn hộ cao cấp
-
Tầng mái: Là khu vực Rooftop với bể bơi vô cực
-
-
Hình thức sở hữu: Sổ hồng có thời hạn.
Click để XEM Video Dự án
II, VỊ TRÍ DỰ ÁN EPIC TOWER 19 DUY TÂN CẦU GIẤY
Dự án Epic Tower nằm tại 19 Duy Tân, phường Dịch Vọng Hậu, Quận Cầu Giấy, Hà Nội chỉ cách đường Duy Tân 30m, đây là vị trí đắc địa trung tâm quận Cầu Giấy, nơi được mệnh danh là Phố Wall của Hà Nội. Epic Tower dễ dàng di chuyển đến sân bay (khoảng 15’), các quận trung tâm của Hà Nội và thuận tiện khi di chuyển đến trung tâm kinh tế lớn của phía Bắc (như Hải phòng, Quảng Ninh, Vĩnh phúc, Bắc Ninh…).

Không chỉ đắc địa tại trái tim Khu Đô Thị Mới Cầu Giấy với hàng loạt điểm tiếp giáp với các tuyến đường huyết mạch và khu đô thị hạt nhân, Epic Tower còn dễ dàng kết nối đến trái tim thủ đô nhờ lộ trình đơn giản và thuận tiện. Vẻ đẹp của Epic Tower còn chạm đến hàng trăm con tim của giới tinh hoa – một điểm đến kết nối những trái tim.
Ranh giới dự án chung cư Epic Tower tiếp giáp với:
-
Phía Đông: Giáp Công ty Ford Thăng Long
-
Phía Tây: Giáp khu đất ngân hàng BIDV
-
Phía Nam: Giáp với công ty Bưu chính viễn thông và Công ty thiết bị y tế Medinsco
-
Phía Bắc: Giáp với mặt ngõ 19 Duy Tân.

Tọa lạc tại vị trí vàng trung tâm Phố Duy Tân – Nơi được coi như Khu tài chính Phố Wall của Việt Nam, dự án Epic Tower Cầu Giấy được bao quanh bởi những tuyến đường huyết mạch của thủ đô như: Vành đai 3 – Trần Thái Tông – Xuân Thủy – Phạm Hùng kiến tạo một môi trường sống văn minh & đẳng cấp.
Vì vậy, cư dân chung cư Epic Tower Cầu Giấy vẫn dễ dàng di chuyển. Xung quanh dự án hệ thống hạ tầng giao thông hiện đại mà cư dân có thể hưởng lợi từ đó:
-
Cách ĐH Quốc Gia Hà Nội, ĐH thương mại 1,5km
-
Cách bệnh viện 198, bệnh viện huyết học 0,5 km
-
Cách trung tâm hội nghị Quốc Gia 1,5 km
-
Cách bến xe Mỹ Đình 0,5km, TTTM The Garden 1,5km
-
Cách công viên Cầu Giấy, công viên Yên Hòa 0,5 km
-
Thuận tiện đi sân bay Nội Bài theo đường Phạm Hùng hoặc Võ Chí Công

III, TIỆN ÍCH DỰ ÁN EPIC TOWER DUY TÂN CẦU GIẤY
Epic Tower Duy Tân được chủ đầu tư Ecoland xây dựng một cách đầy thông minh để phục vụ cho đời sống cao cấp của cư dân. Hiểu rõ độ sành điệu và am hiểu của các chủ nhân thượng lưu, mỗi khu vực tiện ích đều được chăm chút đặc biệt để thăng hoa cảm xúc và trải nghiệm nghỉ dưỡng hoàn toàn riêng tư và sang trọng.
Nằm ở vị trí đắc địa và có lợi thế quỹ đất rộng lớn, chủ đầu tư dự án Epic Tower Cầu Giấy đã kiến tạo hệ thống nhiều tiện ích cao cấp đảm bảo cư dân khi về sinh sống tại đây sẽ được sử dụng và tận hưởng hạ tầng đồng bộ, tiện nghi ngay ngưỡng cửa.
Tiện ích dự án Epic Tower 19 Duy Tân Cầu Giấy
-
Công viên cây xanh
-
Hồ bơi vô cực có nước nóng
-
Khu vực BBQ trên cao
-
Khu vui chơi trẻ em
-
Business Lounge
-
Phòng gym và yoga theo tiêu chuẩn quốc tế với những thiết bị hiện đại nhất để nâng cao sức khỏe
-
Sảnh chờ đón và trả khách tại hầm B2
-
Dịch vụ tiện ích tại tầng hầm B1
-
Nhà hàng 5 sao
-
3 hầm giữ xe với sức chứa 250 xe hơi và 3000 xe máy
-
An ninh 4 lớp – Bất khả xâm phạm.





Epic Tower chính là nơi những giá trị nghệ thuật được đề cao trên hết. Nơi không gian sống đại diện cho cá tính và đẳng cấp của chủ nhân tinh hoa. Đến thưởng lãm và say mê một Epic Tower rực rỡ vẻ đẹp văn hoá Indochine hoàng kim đầy chất sang cho một cuộc sống hoàn hảo, được tạo nên từ tâm huyết vươn đến chuẩn mực tương lai của đội ngũ kiến tạo tầm vóc quốc tế.




Một biểu tượng nghệ thuật sống động.
Một di sản mới sẽ trường tồn với thời gian.
THÁP B VĂN PHÒNG 5* – Biểu Tượng Kinh Doanh Mang Gía Trị Trường Tồn
Epic Tower sở hữu tòa cao ốc văn phòng đẳng cấp quốc tế 5 sao, cung cấp cho thị trường 26.000 m2 diện tích văn phòng và dịch vụ thương mại.
Tọa lạc tại 19 phố Duy Tân, trung tâm khu đô thị mới Cầu Giấy – nơi được coi là “Thung lũng Silicon” của Thủ Đô, tập trung nhiều văn phòng, các tổ chức phi chính phủ, cơ quan hành chính quan trọng, Epic Tower nổi lên là tòa văn phòng cao cấp, sở hữu nhiều tiện ích độc bản, đáp ứng tối ưu nhu cầu của giới doanh nhân, mang vượng khí cho doanh nghiệp phát triển trường tồn.

Tòa nhà Epic Tower có quy mô gồm 2 tháp A – B, mỗi tháp cao 30 tầng nổi và 04 tầng hầm trong đó tháp B dành riêng cho khối văn phòng. Diện tích sàn dự kiến đạt 774.5m2, dự kiến cung cấp cho thị trường cho thuê văn phòng quận Cầu Giấy hơn 20.000m2 diện tích cho thuê.
Để đáp ứng được nhu cầu thuê văn phòng của các doanh nghiệp có quy mô đa dạng, chủ đầu tư đã lên nhiều phương án phân chia linh hoạt từ 100m2- 150m2- 200m2… đến nguyên sàn.

Không gian văn phòng hiện đại, nội thất tiện nghi đầy đủ cung cấp nơi làm việc chất lượng, đạt chuẩn cho các doanh nghiệp.
Epic Tower cung cấp cho khách thuê nội thất văn phòng tiêu chuẩn như:
+ Khu vực sảnh sử dụng vật liệu gạch men cao cấp đem lại vẻ sang trọng, tinh tế.
+ Cửa kính cường lực LowE 3 lớp đem lại khả năng cách âm, cách nhiệt
+ Sàn bê tông cán phẳng; Tường và vách ngăn từ vật liệu thạch cao
+ Điều hòa trung tâm hiện đại VRF
+ Hệ thống 5 thang máy loại Schindler tốc độ 2,5m/s cho khối văn phòng
+ Hệ thống PCCC hiện đại với đầu báo khói tự động đạt tiêu chuẩn quốc gia
+ Máy phát điện dự phòng 2000 KVA đảm bảo 100% công suất trong trường hợp mất điện xảy ra
+ Hệ thống an ninh hoạt động 24/7 với camera lắp đặt ở khu vực sảnh, hành lang của Epic Tower
Tiện ích thuê văn phòng Epic Tower:
Là tòa nhà văn phòng chuyên nghiệp, Epic Tower cung cấp đầy đủ các dịch vụ – tiện nghi đem lại cho đội ngũ nhân viên làm việc tại đây những điều kiện tốt nhất.
Tòa nhà sở hữu hệ thống hạ tầng đồng bộ, đa dạng và thừa hưởng nhiều tiện ích ngoại khu sẵn có đảm bảo điều kiện làm việc tốt nhất cho các doanh nghiệp.
+ Khách thuê văn phòng của Epic Tower đem lại chất lượng dịch vụ tốt nhất đảm bảo việc vận hành và quản lý tòa nhà BMS thông minh
+ Bãi đỗ xe diện tích toàn bộ 4 tầng hầm và khu vực xung quanh tòa nhà
+ Các tiện ích ngoại khu xung quanh tòa nhà gồm hệ thống các phòng giao dịch, ATM, nhà hàng, quán cafe, khu mua sắm,…
Giá thuê văn phòng tại Epic Tower
-
Giá gộp (giá thuê + phí DV):Từ $17/m2/tháng
-
Phí dịch vụ từ Quản lý vận hành CBRE: Miễn phí
-
Điện trong văn phòng: Đồng hồ riêng
-
Điện điều hòa: Đồng hồ riêng
-
Thời gian thuê tối thiểu: 3 năm
-
Đặt cọc: 3 tháng
-
Thanh toán theo: 3 tháng/lần


THÁP A CĂN HỘ CAO CẤP – Bản Trường Ca Rực Rỡ “Dinh Thự Nghệ Thuật”
Epic Cầu Giấy Art Boutique Home lần đầu tiên xuất hiện tại Việt Nam, căn hộ “DINH THỰ NGHỆ THUẬT” dành cho những chủ nhân mộ điệu tinh hoa. Epic Tower là bản trường ca rực rỡ trong dáng dấp Art Boutique Home. Art Boutique Home lần đầu tiên xuất hiện tại Việt Nam, căn hộ “DINH THỰ NGHỆ THUẬT” dành cho những chủ nhân mộ điệu tinh hoa.
Tổng cộng 30 tầng nổi và 4 tầng hầm, trong đó:
Tháp đôi Chung cư / Văn phòng Dự án Epic Tower về đêm
-
Hầm B2 – B4: Hầm đỗ xe.
-
Hầm B1: Tổ hợp thương mại dịch vụ ăn uống.
-
Tầng 1: Sảnh căn hộ, phòng quản lý kỹ thuật, phòng chờ, khu vực vệ sinh công cộng.
-
Tầng 2: Khu vực sinh hoạt cộng đồng. Nhà hàng Âu – Á, phòng hội thảo, vệ sinh công cộng.
-
Tầng mái: Là khu vực Rooftop với bể bơi vô cực.


IV, MẶT BẰNG CĂN HỘ CHUNG CƯ EPIC TOWER DUY TÂN CẦU GIẤY
Chung cư Epic Tower Cầu Giấy có quy mô cao 30 tầng nổi với 308 căn hộ cao cấp có diện tích từ 68.5 m² – 121 m² với thiết kế hiện đại sang trọng mang ánh sáng và gió tự nhiên tới từng góc của căn hộ. Đem lại cho cư dân một cuộc sống an cư lý tưởng – nơi hạnh phúc thăng hoa cho gia đình bạn.


Các căn hộ Epic Tower 19 Duy Tân được thiết kế tối ưu công năng sử dụng. 100% phòng ngủ trong căn hộ đều đón được gió và ánh sáng tự nhiên. Cửa sổ phòng ngủ và phòng khách rộng khiến cho không gian phòng được rộng mở hơn, thông thoáng hơn và có góc nhìn toàn cảnh ra xung quanh.

Mỗi kiệt tác đều được tạo nên từ bàn tay của một nghệ sỹ. Tại Epic Tower, đó là công trình của cả một đội ngũ kiến tạo và cộng sự tài hoa luôn đặt tính duy mỹ lên hàng đầu trong mỗi chi tiết đến từ những tên tuổi quốc tế như Đức, Pháp, Tây Ban Nha. Và những trái tim khát khao vươn tới sự hoàn mỹ đã cùng gặp nhau để viết nên bản trường ca của những giá trị bền vững sẽ sống mãi với thời gian.




V, NỘI THẤT BÀN GIAO CĂN HỘ EPIC TOWER DUY TÂN
Epic Tower như một “đế chế” riêng mang cảm hứng phong cách Đông Dương Quý phái. Những chi tiết được sắp xếp đầy tâm ý để gợi nhớ về một chất sang trọng, quyền quý xưa trong nhịp đập hiện đại ngày nay. Không gian trong tòa nhà mang xu hướng hiện đại khi được trang bị đầy đủ nội thất tiện nghi với mục đích đảm bảo một không gian làm việc chất lượng nhất cho các doanh nghiệp trên con đường phát triển bền vững.
Nội thất bàn giao căn hộ Epic Tower
-
Thiết kế cửa lùa Panorama “nhân rộng” không gian cho tầm nhìn đa chiều, tăng ánh sáng và gió tự nhiên
-
Hệ cửa kịch trần mang lại vẻ sang quý trường tồn
-
Đường viền và tay nắm cửa màu champagne quý phái
-
Thiết bị bếp & vệ sinh nhập khẩu chính hãng của Đức.
Kết cấu bên ngoài tòa nhà Epic Tower
– Kính Low-E 3 lớp từ Eurowindow
– Công nghệ kính dán nhiều lớp từ hãng Eurowindow – Thông số: 31.52mm = 6HS Low E + 12 khí Argon + 6HS clear +1.52+6Hs Clear
– Tính năng:
-
Khống chế nhiệt lượng Uv<1.4 W/(m2.K)
-
Cân bằng sáng
-
Không gây chói mắt
-
Chống tia UV
-
Ngăn ngừa đọng sương trên bề mặt
-
Cách âm.



VI, GIÁ BÁN VÀ TIẾN ĐỘ THANH TOÁN Ở EPIC TOWER DUY TÂN
Cam kết không thu phí khách hàng, miễn phí 100% phí tư vấn, hỗ trợ khách hàng tối đa tới khi tìm được căn hộ, văn phòng ưng ý nhất.
PHƯƠNG ÁN 1: KHÔNG VAY NGÂN HÀNG – NHẬN CHIẾT KHẤU LUÔN 5%
-
Đặt cọc: 200.000.000 đ
-
Đợt 1: Thanh toán 30% giá trị căn hộ sau 7 ngày kể từ ngày đặt cọc
-
Đợt 2: Thanh toán 70% giá trị căn hộ sau 1 tháng kể từ ngày đặt cọc
PHƯƠNG ÁN 2: VAY VỐN NGÂN HÀNG – HỖ TRỢ LÃI SUẤT 0% VÀ ÂN HẠN NỢ GỐC TỚI 12 THÁNG
-
Đặt cọc: 200.000.000 đ
-
Đợt 1: Thanh toán 20-30% giá trị căn hộ sau 7 ngày
-
Đợt 2: Thanh toán 70-80% giá trị hợp đồng sau 1 tháng kể từ ngày đặt cọc (Ngân hàng Indovina Bank giải ngân)
TIẾN ĐỘ THANH TOÁN CỦA EPIC TOWER 19 DUY TÂN
-
Đợt 1: Thanh toán 20% giá trị HĐMB khi ký hợp đồng.
-
Đợt 2: Thanh toán 15% giá trị HĐMB khi xây đến tầng 2
-
Đợt 3: Thanh toán 15 giá trị HĐMB khi xây đến tầng 10
-
Đợt 4: Thanh toán 10% giá trị HĐMB khi xây đến tầng 18
-
Đợt 5: Thanh toán 10% giá trị HĐMB khi xây đến tầng 25.
-
Đợt 6: Thanh toán 25% giá trị HĐMB khi cất nóc dự án.
-
Đợt 7: Thanh toán 5% giá trị HĐMB khi nhận bàn giao nhà
Thông tin chi tiết dự án chung cư Epic Tower Cầu Giấy quý khách liên hệ:













